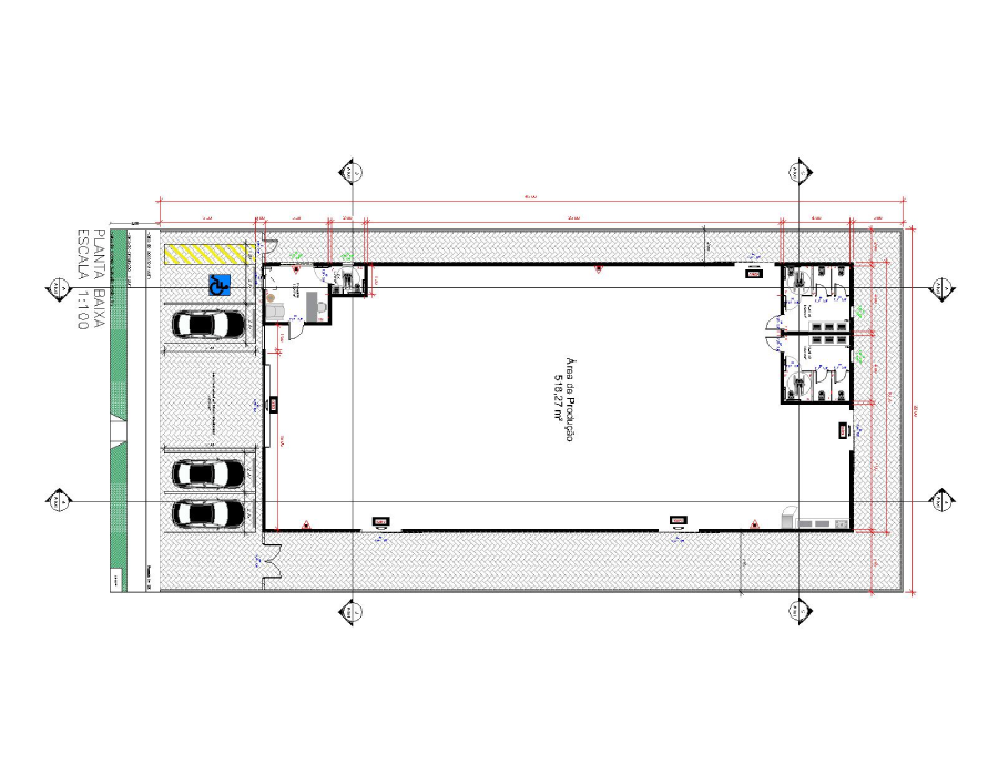
Galpão Industrial

O Galpão industrial foi planejado para atender as necessidades do cliente, é uma construção ampla e versátil e que atende as normas da prefeitura e as normas de acessibilidade. A estrutura não possui muitas divisórias internas, assim, permite a utilização do espaço de maneira flexível e além disso, adaptável às necessidades do usuário.